5 locali in vendita

Tito, Via Borgo San Donato
€ 58.000
5 locali 5 locali
140 Mq 140 Mq
2 bagni 2 bagni

5 locali in vendita

Tito, Via Borgo San Donato

Descrizione annuncio

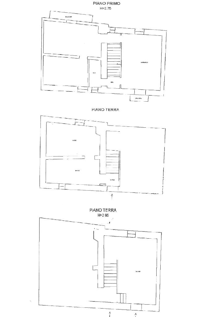
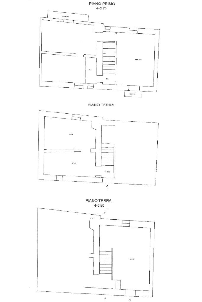
Nel cuore del comune di Tito, in Via Borgo San Donato n°29, si propone in vendita un'interessante soluzione immobiliare. L'immobile, un intero fabbricato terra cielo, offre un'ampia superficie distribuita su due livelli. Al piano terra, un deposito di 64 mq, ideale per molteplici utilizzi, dotato di camino e bagno, offre un ambiente perfetto per gli appassionati di enologia, grazie alle attrezzature per la produzione del vino. Al primo piano, l'appartamento di 100 mq accoglie con un soggiorno dotato di termocamino recentemente revisionato e un balcone, perfetto per momenti di relax, angolo cottura e bagno completano la zona giorno. Nella zona notte le due camere da letto, di cui una con balcone con vista panoramica, sono ampie e luminose, garantendo comfort e privacy. Completa la proprietà un'ampia soffitta, ideale per chi necessita di spazio aggiuntivo. Pronto per essere personalizzato grazie a una ristrutturazione completa. L'edificio ha beneficiato del rifacimento totale del tetto nel 2017, garantendo così una struttura solida e ben mantenuta. Situato in una posizione strategica, l'immobile rappresenta un'opportunità unica per chi desidera vivere nel centro di Tito, con la possibilità di creare uno spazio abitativo su misura. Perfetto per chi cerca una soluzione abitativa da personalizzare in un contesto tranquillo.

Mostra tutto

Nelle vicinanze

Trasporto pubblico Trasporto pubblico
Trasporto pubblico
290 m
Piazza del Seggio
Piazza del Seggio
340 m
Ricariche auto elettriche Ricariche auto elettriche
Tito San Vito | EnelX
520 m
Scuole Scuole
Scuole
280 m
Farmacia Farmacia
Farmacia
470 m
Supermercati Supermercati
Mag Market
330 m
Supermercati
560 m
Pickup
2,9 Km
Negozi Negozi
Negozi
110 m
Altieri
580 m
Bar Bar
Bar
340 m
Wine Bar Peccati DiVino
370 m
Amici di Via Roma
450 m
Terrazza le Mimose
800 m
Oiveto
2,8 Km
Ristoranti Ristoranti
Ristoranti
280 m
Be happy social pub
360 m
Pizzeria Ascenedda
490 m
Mephitis
1,3 Km
Azienda Agrituristica Santa Venere
1,4 Km
Mostra tutto

Caratteristiche

Rif.:
61146217
Piano:
Su più livelli di 2
Totale piani:
2
Balconi:
2
Camere da letto:
2
Arredamento:
Assente
Mostra tutto
Prezzo Prezzo
€ 58.000
Rata mutuo Rata mutuo
€ 274 / mese
Spese annue Spese annue
€ 0
Proponi il tuo prezzoProponi il tuo prezzo

Classe Energetica

G
G
G
G
G
G
G
G
G
EP globale non rinnovabile:
203.24 kW h/m² anno
EP invernale del fabbricato:
EP estiva del fabbricato:
Anno di costruzione:
1967
Riscaldamento:
Autonomo
Tipo impianto:
A radiatori
Tipo alimentazione:
Metano

Ti interessa visionare l'immobile?

Fissa un appuntamento  Fissa un appuntamento

Richiedi informazioni

Clicca su Leggi per aprire l'informativa
* Questi campi sono obbligatori

Calcola il tuo mutuo

Semplice e senza impegno
Anticipo

( % )
Mutuo

( % )

pochi semplici passi

inserisci i tuoi dati
Questionario completato
Grazie per aver richiesto un appuntamento senza impegno con un nostro Consulente del Credito e Assicurativo.

Hai inserito correttamente tutti i dati necessari e a breve riceverai una e-mail con un link da convalidare per inviare i tuoi dati.
Affiliato
Studio Pretoria Srlu
Largo Pisacane, 13 85100 Potenza (PZ)

Il nostro staff


  • Antonio Mignone
    Affiliato

  • Danilo Bochicchio
    Collaboratore

  • Francesca Di Michele
    Coordinatrice

  • Danny Giambrocono
    Collaboratore

  • Martino Martellotta
    Collaboratore
Largo Pisacane, 13 85100 Potenza (PZ)
Zona: Potenza - Centro
Mostra su mappa
Orari: dal lunedì al venerdì 9.00/13.00 - 15.30/20.00;sabato 9.00/13.00.
Affiliato
Studio Pretoria Srlu
Largo Pisacane, 13 85100 Potenza (PZ)

2026 Tecnocasa Franchising S.p.A. - P. IVA 08365160152 - Via Monte Bianco 60/A 20089 Rozzano (MI). Ogni agenzia ha un proprio titolare ed è autonoma. Privacy policy | Policy utilizzo | Cookie policy