Box / posti auto in vendita

Potenza, Via Isca degli Antichi
€ 55.000
Prezzo aggiornato
6 locali 6 locali
66 Mq 66 Mq
1 bagno 1 bagno

Box / posti auto in vendita

Potenza, Via Isca degli Antichi

Descrizione annuncio

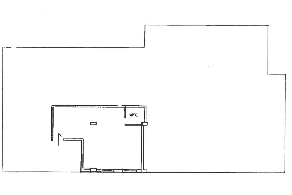
Nel comune di Potenza, in Via Isca degli Antichi n°18, è disponibile per la vendita un locale artigianale di 66 mq, situato al piano terra di uno stabile. L'immobile, offre una disposizione interna attualmente suddivisa in sei vani, oltre a un bagno con antibagno, rendendolo ideale per chi desidera realizzare uno studio professionale. La posizione al piano terra garantisce un facile accesso, mentre la possibilità di parcheggio nelle vicinanze aggiunge un ulteriore elemento di praticità. Questo spazio versatile si presta a diverse soluzioni, rispondendo alle esigenze di chi cerca un ambiente funzionale e ben collegato nel cuore di Potenza.

Mostra tutto

Nelle vicinanze

Trasporto pubblico Trasporto pubblico
Potenza Inferiore Scalo
Potenza Inferiore Scalo
650 m
stazione di Potenza Centrale
stazione di Potenza Centrale
1,0 Km
#43 - Via del Gallitello
#43 - Via del Gallitello
80 m
#198 - Viale dell Unicef Galassia
#198 - Viale dell Unicef Galassia
150 m
Potenza Inferiore
Potenza Inferiore
1,0 Km
Ricariche auto elettriche Ricariche auto elettriche
Eneldrive Punto Enel
440 m
Potenza Via Tirreno | EnelX
540 m
Potenza Vaccaro | EnelX
940 m
Potenza Gallitello | EnelX
1,1 Km
Regione Basilicata | EnelX
1,5 Km
Scuole Scuole
Primaria "Milani"
520 m
Secondaria "Via Tirreno"
570 m
Primaria "Tullo Trotta"
710 m
Liceo Classico Statale Q.O.Flacco
780 m
Primaria "A. Grippo"
860 m
Farmacia Farmacia
Farmacia Caiazza Dr. Franco
520 m
San Gerardo
560 m
Farmacia Peluso
800 m
Farmacia Dente - Vicario Dr. Luca
1,1 Km
Parafarmacia Biocosmo
1,2 Km
Ospedali Ospedali
Polo Sanitario 'Madre Teresa di Calcutta'
820 m
ospedale San Carlo
2,7 Km
Supermercati Supermercati
Carrefour
110 m
EuroSpin
150 m
Pick Up
510 m
Supermercato Dok
650 m
Conad
680 m
Negozi Negozi
Senso Unico
470 m
Sport One - factory outlet
500 m
Ilario Ungaro Stores
700 m
Negozi
720 m
prenatal
870 m
Bar Bar
La Delizia
280 m
Bar
280 m
Oltre Il Fiume Barcafè
480 m
Main Street cafè
480 m
bar caffè l incontro
620 m
Ristoranti Ristoranti
Tre Mari
540 m
Cuore e Tradizione
670 m
Centola
680 m
Trattoria Da Mimmo Il Ciclista
750 m
Ristorante Pizzeria Valentino
830 m
Mostra tutto

Caratteristiche

Rif.:
61115551
Piano:
Terra di 4 con ascensore
Totale piani:
4
Arredamento:
Assente
Condizionamento:
Assente
Ascensore:
Mostra tutto
Prezzo Prezzo
€ 55.000
Rata mutuo Rata mutuo
€ 260 / mese
Spese annue Spese annue
€ 120
Proponi il tuo prezzoProponi il tuo prezzo

Altre caratteristiche

Descrizione dei locali
Bagno Cieco Locali studio

Classe Energetica

G
G
G
G
G
G
G
G
G
EP globale non rinnovabile:
82.33 kW h/m² anno
EP invernale del fabbricato:
EP estiva del fabbricato:
Anno di costruzione:
1993
Riscaldamento:
Autonomo
Tipo impianto:
A radiatori
Tipo alimentazione:
Metano

Prezzo ridotto di €1 (9%%)

Ti interessa visionare l'immobile?

Fissa un appuntamento  Fissa un appuntamento

Richiedi informazioni

Clicca su Leggi per aprire l'informativa
* Questi campi sono obbligatori

Calcola il tuo mutuo

Semplice e senza impegno
Anticipo

( % )
Mutuo

( % )

pochi semplici passi

inserisci i tuoi dati
Questionario completato
Grazie per aver richiesto un appuntamento senza impegno con un nostro Consulente del Credito e Assicurativo.

Hai inserito correttamente tutti i dati necessari e a breve riceverai una e-mail con un link da convalidare per inviare i tuoi dati.
Affiliato
Studio Pretoria Srlu
Largo Pisacane, 13 85100 Potenza (PZ)

Il nostro staff


  • Antonio Mignone
    Affiliato

  • Francesca Di Michele
    Coordinatrice

  • Danny Giambrocono
    Collaboratore

  • Martino Martellotta
    Collaboratore
Largo Pisacane, 13 85100 Potenza (PZ)
Zona: Potenza - Centro
Mostra su mappa
Orari: dal lunedì al venerdì 9.00/13.00 - 15.30/20.00;sabato 9.00/13.00.
Affiliato
Studio Pretoria Srlu
Largo Pisacane, 13 85100 Potenza (PZ)

2026 Tecnocasa Franchising S.p.A. - P. IVA 08365160152 - Via Monte Bianco 60/A 20089 Rozzano (MI). Ogni agenzia ha un proprio titolare ed è autonoma. Privacy policy | Policy utilizzo | Cookie policy