Bilocale in vendita

Potenza, Via Valle Paradiso
€ 79.000
2 locali 2 locali
72 Mq 72 Mq
1 bagno 1 bagno

Bilocale in vendita

Potenza, Via Valle Paradiso

Descrizione annuncio

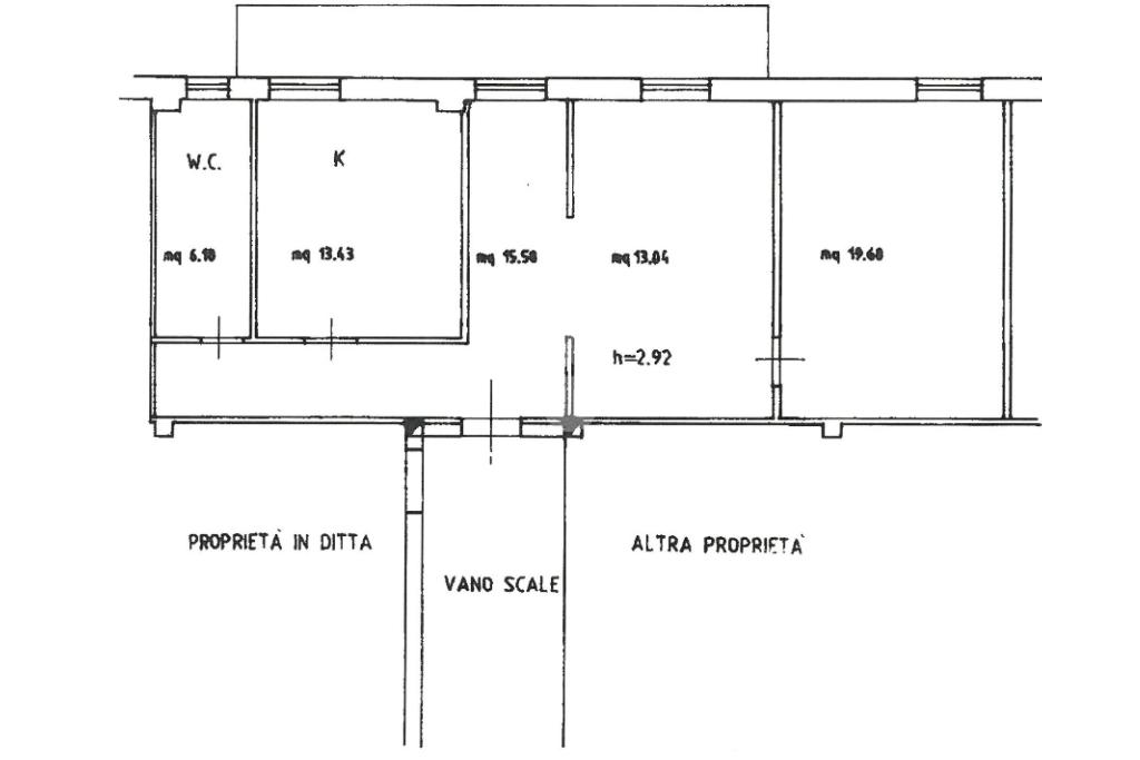
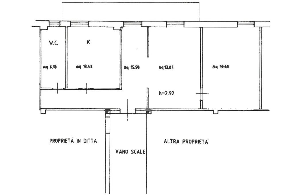
In vendita a Potenza, in Via Valle Paradiso n°173, un accogliente appartamento di 72 mq situato al primo piano di un edificio senza ascensore. L'immobile, si presenta in ottimo stato, grazie anche all'istallazione di infissi nuovi che garantiscono un buon isolamento termico e acustico. L'appartamento è composto da un ingresso che conduce a una cucina abitabile, un soggiorno luminoso, una camera da letto e un bagno funzionale. Un balcone di 7 mq offre uno spazio esterno ideale per momenti di relax. Completa la proprietà una soffitta, utile per riporre oggetti e mantenere l'ordine in casa. Questa soluzione abitativa è perfetta per chi cerca un ambiente confortevole e ben distribuito in una zona tranquilla della città.

Mostra tutto

Nelle vicinanze

Trasporto pubblico Trasporto pubblico
Potenza Inferiore Scalo
Potenza Inferiore Scalo
790 m
stazione di Potenza Centrale
stazione di Potenza Centrale
1,2 Km
#43 - Via del Gallitello
#43 - Via del Gallitello
150 m
#45 - Via Isca del Pioppo
#45 - Via Isca del Pioppo
180 m
Potenza Inferiore
Potenza Inferiore
1,2 Km
Ricariche auto elettriche Ricariche auto elettriche
Eneldrive Punto Enel
380 m
Potenza Via Tirreno | EnelX
660 m
Potenza Gallitello | EnelX
1,1 Km
Potenza Vaccaro | EnelX
1,2 Km
Regione Basilicata | EnelX
1,6 Km
Scuole Scuole
Primaria "Milani"
570 m
Secondaria "Via Tirreno"
610 m
Primaria "A. Grippo"
810 m
Primaria "Tullo Trotta"
880 m
Liceo Classico Statale Q.O.Flacco
1,0 Km
Farmacia Farmacia
San Gerardo
360 m
Farmacia Caiazza Dr. Franco
600 m
Farmacia Peluso
990 m
Parafarmacia Biocosmo
1,2 Km
Farmacia Dente - Vicario Dr. Luca
1,3 Km
Ospedali Ospedali
Polo Sanitario 'Madre Teresa di Calcutta'
830 m
ospedale San Carlo
2,9 Km
Supermercati Supermercati
EuroSpin
70 m
Carrefour
130 m
Supermercato Dok
450 m
Pick Up
600 m
Conad
790 m
Negozi Negozi
Senso Unico
450 m
Sport One - factory outlet
480 m
Negozi
510 m
Ilario Ungaro Stores
700 m
prenatal
1,1 Km
Bar Bar
La Delizia
200 m
Bar
320 m
Oltre Il Fiume Barcafè
400 m
Main Street cafè
490 m
bar caffè l incontro
740 m
Ristoranti Ristoranti
Tre Mari
350 m
Cuore e Tradizione
640 m
Centola
880 m
Trattoria Da Mimmo Il Ciclista
960 m
Ristorante Pizzeria Valentino
1,0 Km
Mostra tutto

Caratteristiche

Rif.:
61175840
Piano:
1 di 3 (Piano basso)
Balconi:
1
Camere da letto:
1
Arredamento:
Assente
Condizionamento:
Assente
Mostra tutto
Prezzo Prezzo
€ 79.000
Rata mutuo Rata mutuo
€ 373 / mese
Spese annue Spese annue
€ 120
Proponi il tuo prezzoProponi il tuo prezzo

Classe Energetica

F
F
F
F
F
F
F
F
F
EP globale non rinnovabile:
110.53 kW h/m² anno
EP invernale del fabbricato:
EP estiva del fabbricato:
Anno di costruzione:
1967
Riscaldamento:
Autonomo
Tipo impianto:
A radiatori
Tipo alimentazione:
Metano

Ti interessa visionare l'immobile?

Fissa un appuntamento  Fissa un appuntamento

Richiedi informazioni

Clicca su Leggi per aprire l'informativa
* Questi campi sono obbligatori

Calcola il tuo mutuo

Semplice e senza impegno
Anticipo

( % )
Mutuo

( % )

pochi semplici passi

inserisci i tuoi dati
Questionario completato
Grazie per aver richiesto un appuntamento senza impegno con un nostro Consulente del Credito e Assicurativo.

Hai inserito correttamente tutti i dati necessari e a breve riceverai una e-mail con un link da convalidare per inviare i tuoi dati.
Affiliato
Studio Pretoria Srlu
Largo Pisacane, 13 85100 Potenza (PZ)

Il nostro staff


  • Antonio Mignone
    Affiliato

  • Danilo Bochicchio
    Collaboratore

  • Francesca Di Michele
    Coordinatrice

  • Danny Giambrocono
    Collaboratore

  • Martino Martellotta
    Collaboratore
Largo Pisacane, 13 85100 Potenza (PZ)
Zona: Potenza - Centro
Mostra su mappa
Orari: dal lunedì al venerdì 9.00/13.00 - 15.30/20.00;sabato 9.00/13.00.
Affiliato
Studio Pretoria Srlu
Largo Pisacane, 13 85100 Potenza (PZ)

2026 Tecnocasa Franchising S.p.A. - P. IVA 08365160152 - Via Monte Bianco 60/A 20089 Rozzano (MI). Ogni agenzia ha un proprio titolare ed è autonoma. Privacy policy | Policy utilizzo | Cookie policy