Quadrilocale in vendita

Potenza, Via Anzio
€ 127.000
4 locali 4 locali
122 Mq 122 Mq
2 bagni 2 bagni

Quadrilocale in vendita

Potenza, Via Anzio

Descrizione annuncio

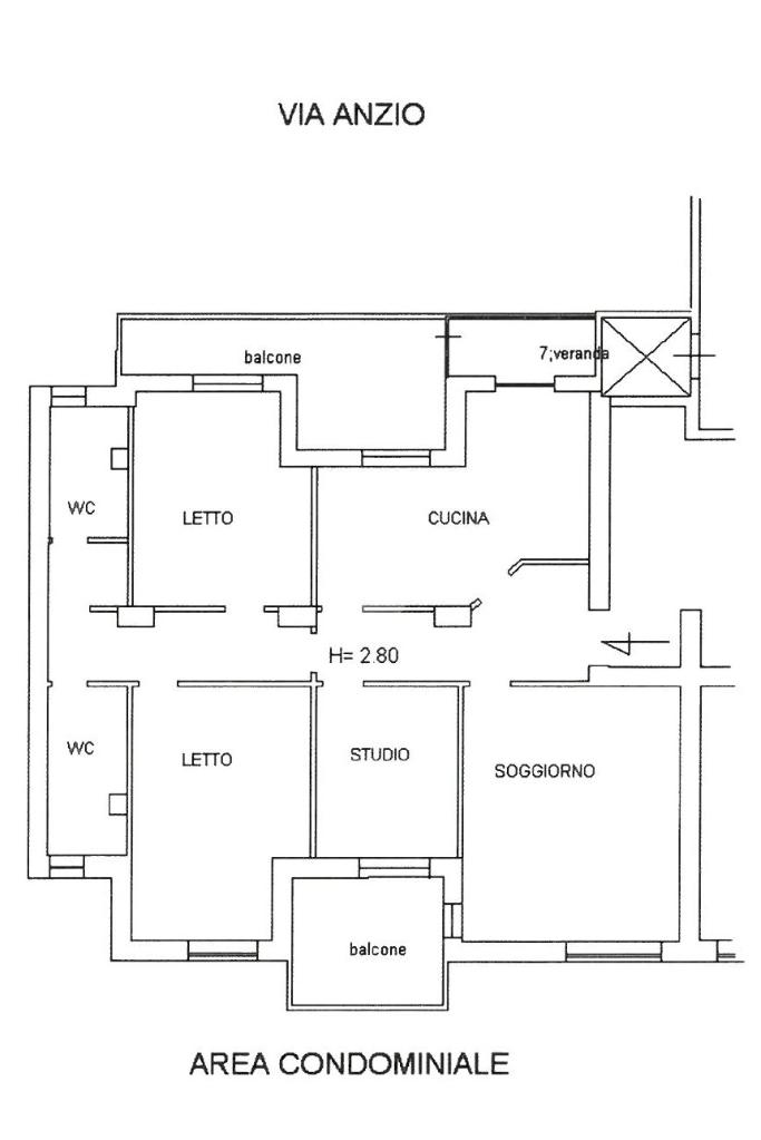
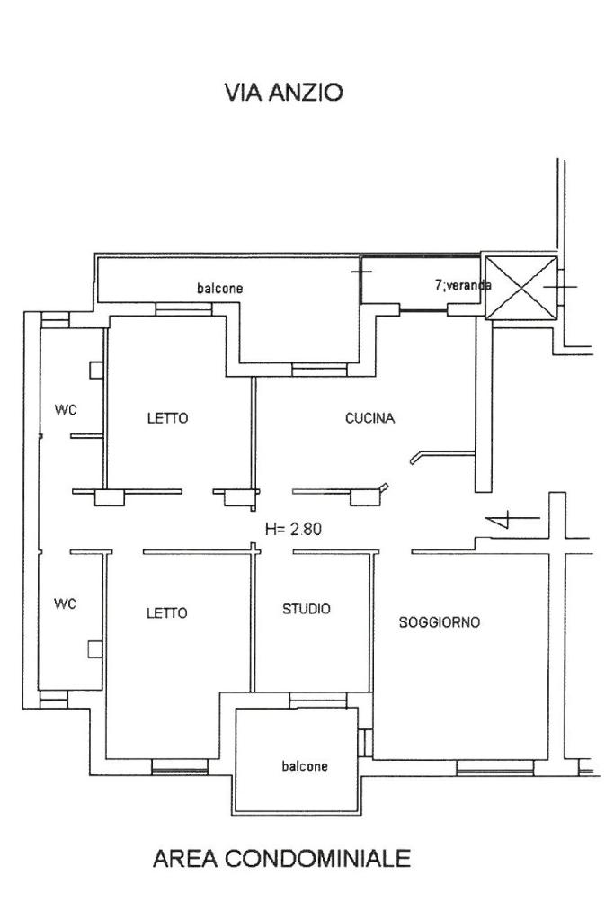
NUDA PROPRIETA' - In vendita a Potenza, con la nuda proprietà, in Via Anzio n°33, un appartamento situato all'ottavo piano di un edificio dotato di ascensore. La proprietà, si estende su una superficie di 122 mq e comprende quattro locali ben distribuiti. L'ingresso, conduce alla cucina abitabile che si apre su un balcone e una comoda veranda. Il soggiorno, anch'esso con balcone, è perfetto per la vita familiare e per ospitare amici. Un disimpegno conduce alla zona notte, composta da tre camere da letto e due bagni, di cui uno ristrutturato. Gli infissi nuovi garantiscono un ottimo isolamento termico e acustico. Caldaia a condensazione. Riscaldamento autonomo. Inclusi nella vendita sono un garage di 15 mq e la possibilità di usufruire di posti auto condominiali, chiusi in un'area condominiale di 1000 mq. L'immobile, comprende anche quote di locali commerciali. La posizione strategica e i servizi offerti rendono questa proprietà un'opzione da considerare per chi desidera vivere in una zona ben servita di Potenza.

Mostra tutto

Nelle vicinanze

Trasporto pubblico Trasporto pubblico
Potenza Santa Maria
Potenza Santa Maria
1,2 Km
Potenza Superiore
Potenza Superiore
1,2 Km
73
73
70 m
74
74
260 m
Potenza Rione Mancusi
Potenza Rione Mancusi
1,1 Km
Ricariche auto elettriche Ricariche auto elettriche
Potenza Gallitello | EnelX
520 m
Potenza Via Tirreno | EnelX
530 m
Potenza S. Cecilia | EnelX
550 m
Regione Basilicata | EnelX
560 m
Potenza Vaccaro | EnelX
880 m
Scuole Scuole
Scuole Pubbliche Istituto Statale D'Arte
80 m
Conservatorio Statale di Musica Carlo Gesualdo Da Venosa
130 m
Conservatorio Statale di Musica Carlo Gesualdo Da Venosa
150 m
Convitto Nazionale Salvator Rosa
220 m
Liceo Scientifico Statale Pier Paolo Pasolini
230 m
Farmacia Farmacia
Farmacia Iura del Dr. Filippo
240 m
Farmacia Iura
360 m
Farmacia Caiazza Dr. Franco
580 m
Parafarmacia Biocosmo
650 m
Vicario
650 m
Ospedali Ospedali
Polo Sanitario 'Madre Teresa di Calcutta'
590 m
ospedale San Carlo
2,0 Km
Supermercati Supermercati
Cafarelli
490 m
Pick Up
590 m
Iper Futura
740 m
MD Discount
830 m
Supermercati
950 m
Negozi Negozi
Lord Abbigliamento
450 m
Negozi
640 m
Ilario Ungaro Stores
660 m
prenatal
770 m
ReDandy
950 m
Bar Bar
Parco Mondo Caffè
570 m
Bar K2
650 m
Bar Parigi
690 m
Bar
740 m
Main Street cafè
750 m
Ristoranti Ristoranti
Re Gallo
310 m
Cibó
510 m
Pizza Co
520 m
Shibumi Sushibar & Ristorante Giapponese Potenza
530 m
Basilico Fresco
570 m
Mostra tutto

Caratteristiche

Rif.:
61136906
Piano:
8 di 10 con ascensore (Piano alto)
Box:
1
Balconi:
2
Camere da letto:
3
Arredamento:
Assente
Mostra tutto
Prezzo Prezzo
€ 127.000
Rata mutuo Rata mutuo
€ 600 / mese
Spese annue Spese annue
€ 600
Proponi il tuo prezzoProponi il tuo prezzo

Classe Energetica

D
D
D
D
D
D
D
D
D
EP globale non rinnovabile:
81.32 kW h/m² anno
EP invernale del fabbricato:
EP estiva del fabbricato:
Anno di costruzione:
1978
Riscaldamento:
Autonomo
Tipo impianto:
A radiatori
Tipo alimentazione:
Metano

Ti interessa visionare l'immobile?

Fissa un appuntamento  Fissa un appuntamento

Richiedi informazioni

Clicca su Leggi per aprire l'informativa
* Questi campi sono obbligatori

Calcola il tuo mutuo

Semplice e senza impegno
Anticipo

( % )
Mutuo

( % )

pochi semplici passi

inserisci i tuoi dati
Questionario completato
Grazie per aver richiesto un appuntamento senza impegno con un nostro Consulente del Credito e Assicurativo.

Hai inserito correttamente tutti i dati necessari e a breve riceverai una e-mail con un link da convalidare per inviare i tuoi dati.
Affiliato
Studio Pretoria Srlu
Largo Pisacane, 13 85100 Potenza (PZ)

Il nostro staff


  • Antonio Mignone
    Affiliato

  • Danilo Bochicchio
    Collaboratore

  • Francesca Di Michele
    Coordinatrice

  • Danny Giambrocono
    Collaboratore

  • Martino Martellotta
    Collaboratore
Largo Pisacane, 13 85100 Potenza (PZ)
Zona: Potenza - Centro
Mostra su mappa
Orari: dal lunedì al venerdì 9.00/13.00 - 15.30/20.00;sabato 9.00/13.00.
Affiliato
Studio Pretoria Srlu
Largo Pisacane, 13 85100 Potenza (PZ)

2026 Tecnocasa Franchising S.p.A. - P. IVA 08365160152 - Via Monte Bianco 60/A 20089 Rozzano (MI). Ogni agenzia ha un proprio titolare ed è autonoma. Privacy policy | Policy utilizzo | Cookie policy