Quadrilocale in vendita

Potenza, Via XXV Aprile - Potenza Centro
€ 79.000
Prezzo aggiornato
4 locali 4 locali
110 Mq 110 Mq
1 bagno 1 bagno

Quadrilocale in vendita

Potenza, Via XXV Aprile - Potenza Centro

Descrizione annuncio

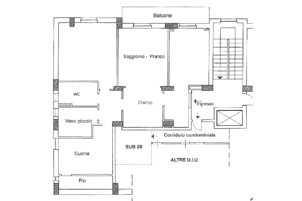
Nel cuore di Potenza, in Via XXV Aprile n°28, è disponibile un appartamento in vendita che offre una comoda soluzione abitativa. Situato al terzo piano a scendere di un condominio dotato di ascensore fino al secondo piano a scendere, l'immobile si estende su una superficie di 110 mq e si presenta da ristrutturare. L'appartamento, è composto da un ingresso che conduce a una prima camera con balcone. Il soggiorno, anch'esso con accesso al balcone, offre uno spazio accogliente per la vita quotidiana. La cucina è separata, garantendo funzionalità e praticità. Completano la proprietà due ulteriori camere da letto e un bagno. Un ulteriore vantaggio è rappresentato dallo scantinato di 10 mq. La posizione centrale dell'immobile consente di usufruire di tutti i servizi e le comodità che la città di Potenza offre.

Mostra tutto

Nelle vicinanze

Trasporto pubblico Trasporto pubblico
Potenza Città
Potenza Città
520 m
Potenza Santa Maria
Potenza Santa Maria
720 m
280
280
70 m
281
281
70 m
Potenza Rione Mancusi
Potenza Rione Mancusi
230 m
Ricariche auto elettriche Ricariche auto elettriche
Potenza Piazza Zara | EnelX
380 m
Potenza Vaccaro | EnelX
420 m
Potenza Pretoria | EnelX
460 m
Potenza don Bosco | EnelX
1,0 Km
Potenza Via Tirreno | EnelX
1,1 Km
Scuole Scuole
Grandi Scuole
190 m
Primaria "XVIII Agosto 1860"
240 m
Infanzia "via IV Novembre"
260 m
Infanzia "Rione Castello"
420 m
Primaria "S. G. Bosco"
470 m
Farmacia Farmacia
Farmacia Diamante
110 m
Farmacia Perri
150 m
Farmacia Mancinelli
200 m
Farmacia Dente - Vicario Dr. Luca
250 m
Farmacia Figliola
360 m
Ospedali Ospedali
ospedale San Carlo
1,4 Km
Polo Sanitario 'Madre Teresa di Calcutta'
1,5 Km
Croce Rossa Italiana
2,3 Km
Ospedali
2,7 Km
Supermercati Supermercati
il gastronomo
220 m
Qui Discount
230 m
A&O Di.Com. Srl Affiliato A & O
320 m
MD Discount
500 m
Pick Up
900 m
Negozi Negozi
der Abbigliamento
110 m
United Colors of Benetton
130 m
Fumetto
170 m
Life Style
190 m
Le4uadre urban poetry
210 m
Bar Bar
dejavu lounge bar
200 m
burbaca
210 m
il negozietto
350 m
0971 Lounge Bar
400 m
Plaza Cafè
420 m
Ristoranti Ristoranti
Ristorante La Tettoia
90 m
Ristorante Monticchio
100 m
Pizza Taxi S.R.L.
130 m
Sottapera S.R.L.
140 m
Il Peperoncino Srl
180 m
Mostra tutto

Caratteristiche

Rif.:
61128329
Piano:
-3 di 8 con ascensore (Piano basso)
Balconi:
1
Camere da letto:
3
Arredamento:
Assente
Condizionamento:
Assente
Mostra tutto
Prezzo Prezzo
€ 79.000
Rata mutuo Rata mutuo
€ 373 / mese
Spese annue Spese annue
€ 480
Proponi il tuo prezzoProponi il tuo prezzo

Classe Energetica

G
G
G
G
G
G
G
G
G
EP globale non rinnovabile:
176.39 kW h/m² anno
EP invernale del fabbricato:
EP estiva del fabbricato:
Anno di costruzione:
1970
Riscaldamento:
Autonomo
Tipo impianto:
A radiatori
Tipo alimentazione:
Metano

Prezzo ridotto di €1 (8%%)

Ti interessa visionare l'immobile?

Fissa un appuntamento  Fissa un appuntamento

Richiedi informazioni

Clicca su Leggi per aprire l'informativa
* Questi campi sono obbligatori

Calcola il tuo mutuo

Semplice e senza impegno
Anticipo

( % )
Mutuo

( % )

pochi semplici passi

inserisci i tuoi dati
Questionario completato
Grazie per aver richiesto un appuntamento senza impegno con un nostro Consulente del Credito e Assicurativo.

Hai inserito correttamente tutti i dati necessari e a breve riceverai una e-mail con un link da convalidare per inviare i tuoi dati.
Affiliato
Studio Pretoria Srlu
Largo Pisacane, 13 85100 Potenza (PZ)

Il nostro staff


  • Antonio Mignone
    Affiliato

  • Francesca Di Michele
    Coordinatrice

  • Danny Giambrocono
    Collaboratore

  • Martino Martellotta
    Collaboratore
Largo Pisacane, 13 85100 Potenza (PZ)
Zona: Potenza - Centro
Mostra su mappa
Orari: dal lunedì al venerdì 9.00/13.00 - 15.30/20.00;sabato 9.00/13.00.
Affiliato
Studio Pretoria Srlu
Largo Pisacane, 13 85100 Potenza (PZ)

2026 Tecnocasa Franchising S.p.A. - P. IVA 08365160152 - Via Monte Bianco 60/A 20089 Rozzano (MI). Ogni agenzia ha un proprio titolare ed è autonoma. Privacy policy | Policy utilizzo | Cookie policy