Ter. residenziale in vendita

Pietragalla, San Nicola di Pietragalla
Informazioni in agenzia
11200 Mq 11200 Mq

Ter. residenziale in vendita

Pietragalla, San Nicola di Pietragalla

Descrizione annuncio

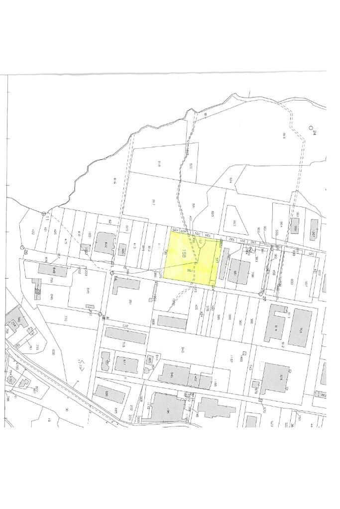
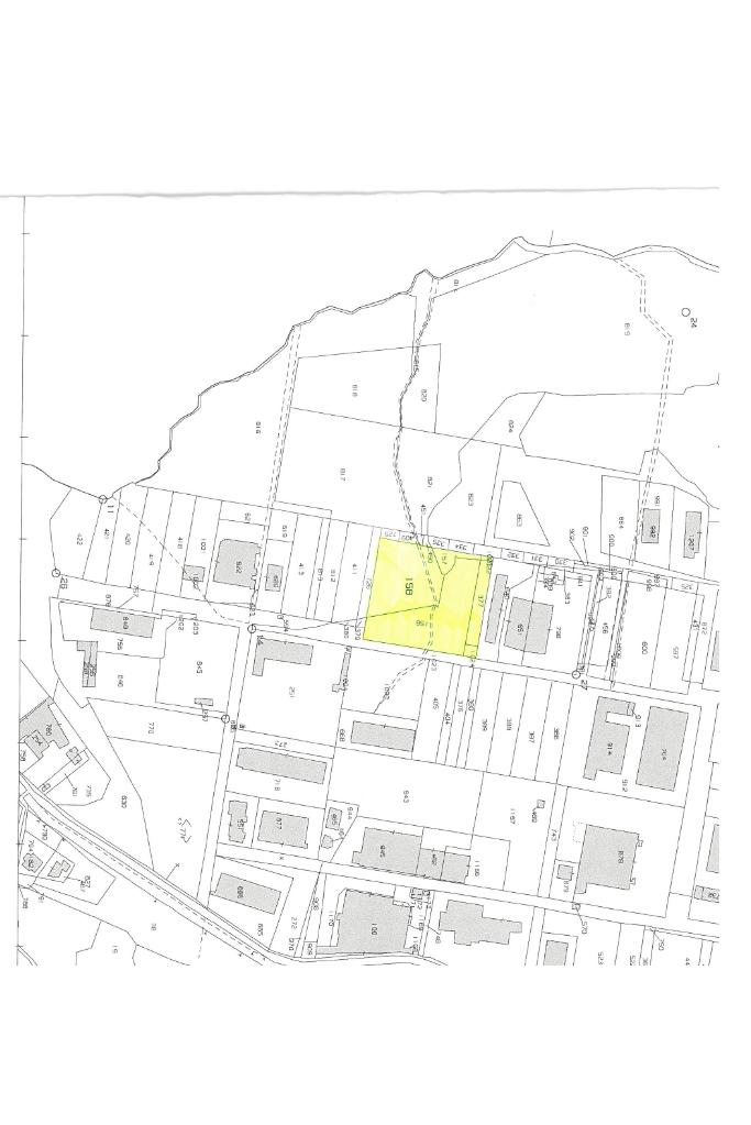
In vendita terreno edificabile di 11.200 mq, situato nella Zona Artigianale di San Nicola di Pietragalla (PZ), con la seguente destinazione urbanistica: Artigianale, Commerciale, Industriale. Il terreno presenta notevoli vantaggi, tra cui la possibilità di frazionamento in tre lotti distinti, consentendo una gestione personalizzata del progetto e adattabile alle specifiche esigenze aziendali. È prevista l'opzione per la costruzione di tre fabbricati, nel rispetto dei seguenti parametri urbanistici: indice di edificabilità fondiaria 2,5 mc/mq, altezza massima dei fabbricati 10,50 ml, la superficie coperta dei fabbricati può arrivare al 50% della superficie dei lotti. Inoltre vi è la possibilità di realizzare piani interrati, in modo da sfruttare ulteriormente la superficie disponibile, aumentando il potenziale di volume edificabile. È possibile sviluppare sulla superficie totale di 11.200 mq, fino a 5.600 mq per piano su tre livelli, oltre alla superficie interrata, per un totale considerevole di spazio utilizzabile. Il terreno è facilmente accessibile dalle strade principali presenti nell’area, inoltre la . 658 Potenza-Melfi è distante 1 km, Potenza è distante 15 km, garantendo una comodità di trasporto e logistica, è servita dalla rete idrica, elettrica, fognaria e gas-metano.

Per maggiori informazioni o per visionare l'immobile può contattarci al seguente numero: 0971/24344, tramite whatsapp: 3448755693, oppure mandare una mail su pzcn6

Per chi avesse intenzione di acquistarlo attraverso l'ottenimento di un mutuo è possibile, inoltre su richiesta, ricevere una consulenza gratuita, grazie ai nostri professionisti della Kiron (Società di Mediazione Creditizia del Gruppo Tecnocasa), i quali offrono servizi e prodotti su misura per ogni tipo di necessità finanziaria. Ogni agenzia ha un proprio titolare ed è autonoma - Le presenti informazioni non costituiscono elemento contrattuale.

Mostra tutto

Nelle vicinanze

Trasporto pubblico Trasporto pubblico
Pietragalla FS
Pietragalla FS
2,5 Km
Avigliano Lucania
Avigliano Lucania
2,6 Km
San Nicola
San Nicola
10 m
Scuole Scuole
Primaria "San Nicola"
330 m
Primaria "Avigliano Scalo"
2,7 Km
Farmacia Farmacia
Farmacia
140 m
Negozi Negozi
Negozi
140 m
Bar Bar
Bar
3,0 Km
Ristoranti Ristoranti
Ristoranti
1,1 Km
Lost in Dreams
3,0 Km
Mostra tutto

Caratteristiche

Rif.:
60972473
Piano:
Terra
Arredamento:
Assente
Condizionamento:
Assente
Ascensore:
No
Riscaldamento:
Assente
Mostra tutto
Prezzo Prezzo
Informazioni in agenzia
Spese annue Spese annue
€ 0
Proponi il tuo prezzoProponi il tuo prezzo

Classe Energetica

G
G
G
G
G
G
G
G
G
EP globale non rinnovabile:
0.00 kW h/m² anno
EP invernale del fabbricato:
EP estiva del fabbricato:
Anno di costruzione:
1000
Riscaldamento:
Assente

Ti interessa visionare l'immobile?

Fissa un appuntamento  Fissa un appuntamento

Richiedi informazioni

Clicca su Leggi per aprire l'informativa
* Questi campi sono obbligatori
Affiliato
Studio Pretoria Srlu
Largo Pisacane, 13 85100 Potenza (PZ)

Il nostro staff


  • Antonio Mignone
    Affiliato

  • Danilo Bochicchio
    Collaboratore

  • Francesca Di Michele
    Coordinatrice

  • Danny Giambrocono
    Collaboratore

  • Martino Martellotta
    Collaboratore
Largo Pisacane, 13 85100 Potenza (PZ)
Zona: Potenza - Centro
Mostra su mappa
Orari: dal lunedì al venerdì 9.00/13.00 - 15.30/20.00;sabato 9.00/13.00.
Affiliato
Studio Pretoria Srlu
Largo Pisacane, 13 85100 Potenza (PZ)

2026 Tecnocasa Franchising S.p.A. - P. IVA 08365160152 - Via Monte Bianco 60/A 20089 Rozzano (MI). Ogni agenzia ha un proprio titolare ed è autonoma. Privacy policy | Policy utilizzo | Cookie policy